干式鐵心電抗器
干式鐵心并聯電抗器

1.型號含義:

2.產品用途:
BKSC干式鐵心電抗器,安裝于6~35kV電力系統中,用于補償
系統中的容性電流。產品可分為單相和三相。
3.產品引用標準
GB/T 1094.6-2011 電力變壓器 第6部分:電抗器
JB/T 10775-2007 6kV∽35kV級干式并聯電抗器技術參數和要求
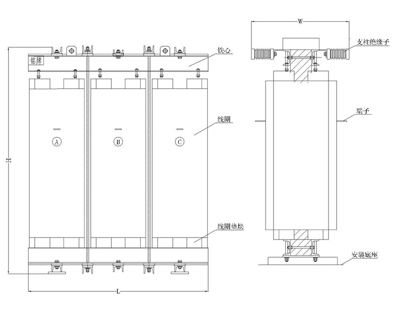
4.產品結構介紹
我公司生產的鐵心并聯電抗器,主體結構包括:鐵心和線圈兩大部分。
電抗器鐵心為三柱芯式結構,芯柱由階梯形或輻射型鐵餅組成,上下鐵軛為矩形或圓形。鐵心采用優質冷軋硅鋼片加工而成,為了降低鐵心的噪聲,鐵心餅采用高強度樹脂澆注灌封為一個整體。鐵芯餅間的氣隙由若干個小氣隙分段組成,既能降低鐵心損耗,又可減少噪聲,鐵心餅通過低導磁螺桿和鐵軛壓緊成一個整體。為了減少鐵心運行中的震動,鐵心和電抗器底座間采用減震材料加以緩沖。
線圈由優質絕緣材料包繞的銅質或鋁質導線繞制而成,繞制過程中為防止多跟導線間產生環流,導線采用完全換位繞制。線圈繞制結束后,采用雙組份環氧樹脂在真空狀態下對線圈進行澆注,確保繞組匝間、層間不留有氣隙,降低產品局部放電。大容量并聯電抗器采用換位導線繞制。
產品的結構示意圖見下圖。

5.訂貨基本參數
系統額定電壓
電抗器額定容量
電抗器額定電流
電抗器額定電抗
系統*高運行電壓
6.常用型號并聯電抗器參數一覽表

7.電抗器接線方式

- 干式鐵心串聯電抗器
- 沒有了!
